Les infos Essentielles
En proximité de la RUE DU RENDEZ-VOUS.
Quartier particulièrement attractif pour ses commerces - écoles - et différentes lignes de Métro ( Nation - Picpus )
Dans une très belle copropriété dans un immeuble Haussmannien.
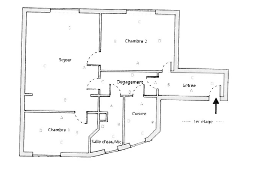
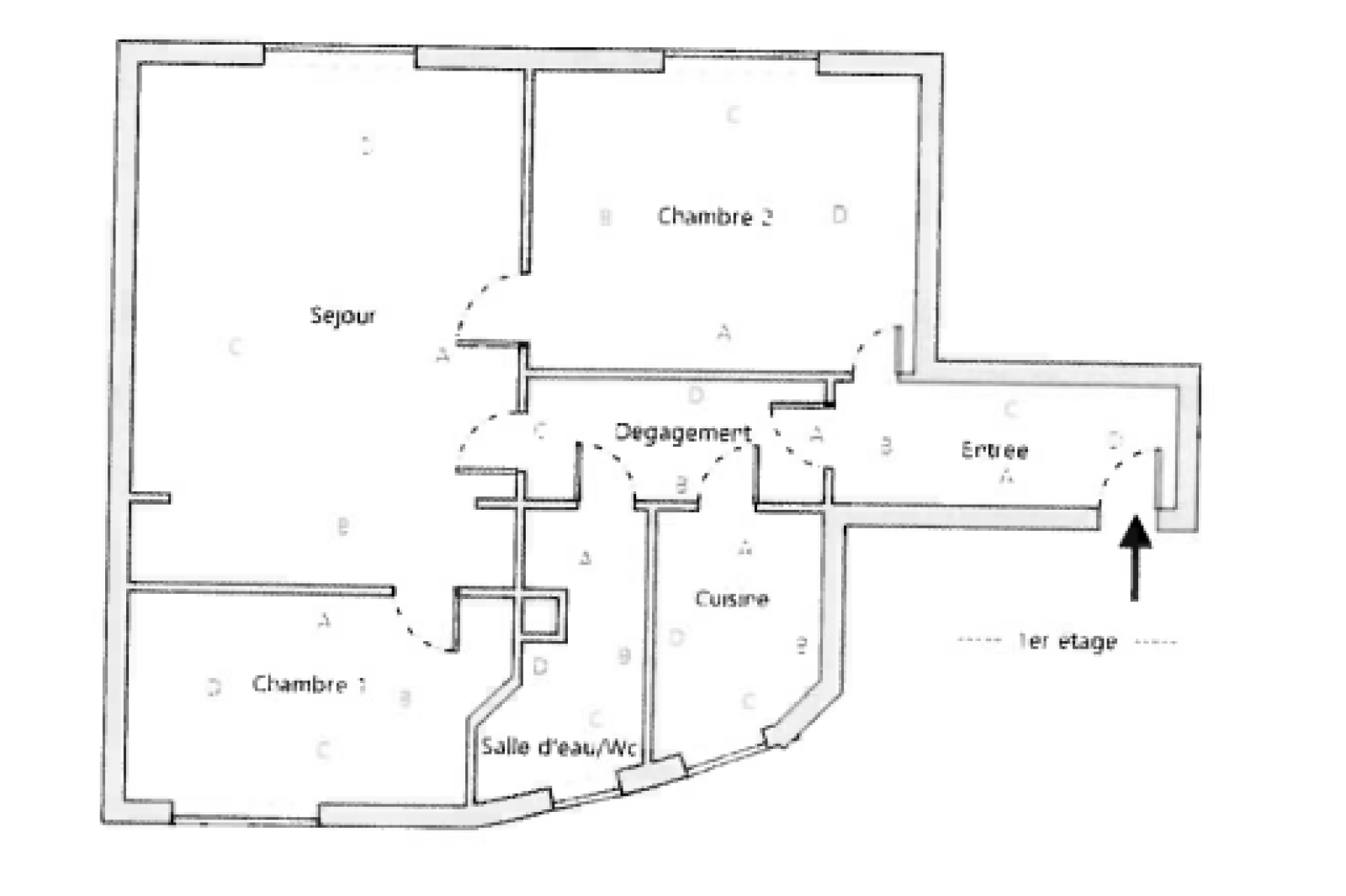
Un appartement de 3 Pièces principales composé d'un Séjour, de deux Chambres, d'une Cuisine indépendante et d'une salle d'eau avec WC.
Faibles charges.
Une cave complète le bien.
Localisation Du bien
-
Commerces et santé
-
Loisirs
-
Ecoles
-
Transports
-
Pratique
Les infos Energetiques
Logement à consommation énergétique excessive : classe F
Montant estimé des dépenses annuelles d'énergie pour un usage standard est compris entre 700 € et 1 400 € . Prix moyens des énergies indexés sur les années 2021, 2022 et 2023 (abonnements compris).
La base légale du traitement repose sur l’intérêt légitime de l'Agence / du Réseau.
Elles sont conservées jusqu'à demande de suppression et sont destinées à l'Agence / au Réseau.
Conformément à la loi « informatique et libertés », vous pouvez exercer votre droit d'accès aux données vous concernant et les faire rectifier en contactant l'Agence / le Réseau.
Si vous estimez, après avoir contacté l'Agence / le Réseau, que vos droits « Informatique et Libertés » ne sont pas respectés, vous pouvez adresser une réclamation à la CNIL.
Nous vous informons de l’existence de la liste d'opposition au démarchage téléphonique « Bloctel », sur laquelle vous pouvez vous inscrire ici : https://www.bloctel.gouv.fr
Dans le cadre de la protection des Données personnelles, nous vous invitons à ne pas inscrire de Données sensibles dans le champ de saisie libre
Ce site est protégé par reCAPTCHA, les Politiques de Confidentialité et les Conditions d'Utilisation de Google s'appliquent.
Détails des diagnostics énergétiques
Logement à consommation énergétique excessive : classe F
Montant estimé des dépenses annuelles d'énergie pour un usage standard est compris entre 700 € et 1 400 € . Prix moyens des énergies indexés sur les années 2021, 2022 et 2023 (abonnements compris).
Magnifique 3 Pièces
