Les infos Essentielles
Dans un environnement calme, à proximité immédiate des commerces de bouche de la rue du Rendez-Vous, de l’avenue du Docteur Arnold Netter et du métro Bel-Air, appartement 3 pièces en souplex situé dans un immeuble récent de 2018.
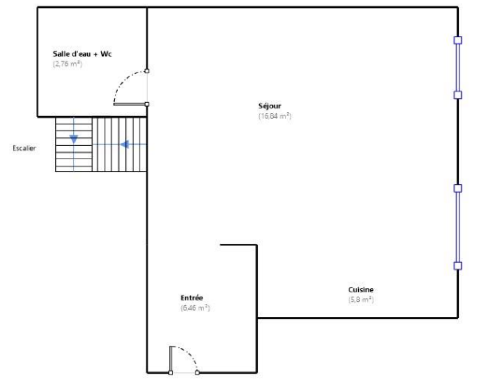
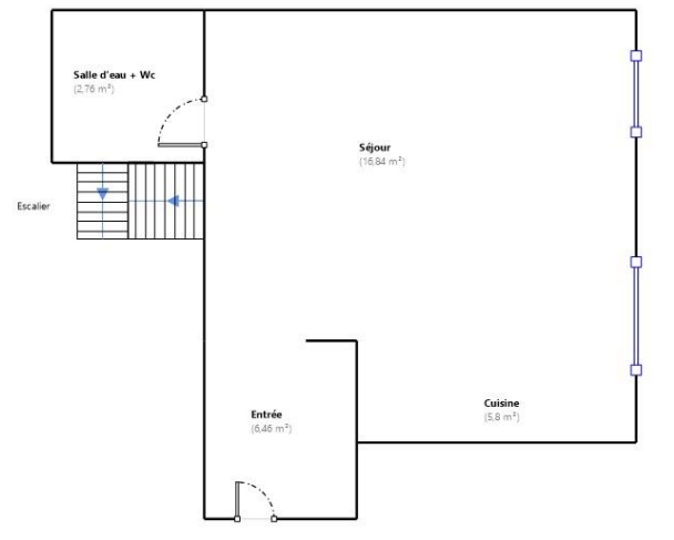
Au rez-de-chaussée, il se compose d’une entrée, d’un séjour avec salle à manger et cuisine ouverte, ainsi que d’une salle d’eau avec WC.
En niveau inférieur, accessible par un escalier intérieur, se trouvent deux chambres, un espace buanderie et une salle de bains avec WC.
Appartement en parfait état, situé rue Victor Chevreuil, rue calme et peu passante. Immeuble avec ascenseur.
" Bien adapté à l’exercice d’une profession libérale "
Possibilité d’une grande place de parking située avenue Michel Bizot.
Localisation Du bien
-
Commerces et santé
-
Loisirs
-
Ecoles
-
Transports
-
Pratique
Les infos Energetiques
Montant estimé des dépenses annuelles d'énergie pour un usage standard est compris entre 823 € et 1 113 € . Prix moyens des énergies indexés sur les années 2021, 2022 et 2023 (abonnements compris).
Ce site est protégé par reCAPTCHA, les Politiques de Confidentialité et les Conditions d'Utilisation de Google s'appliquent.
Détails des diagnostics énergétiques
Montant estimé des dépenses annuelles d'énergie pour un usage standard est compris entre 823 € et 1 113 € . Prix moyens des énergies indexés sur les années 2021, 2022 et 2023 (abonnements compris).
Magnifique et Lumineux dernier étage
