Les infos Essentielles
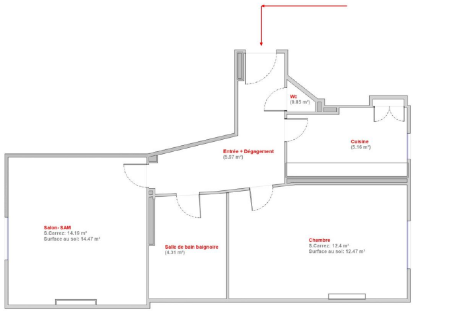
Au 2ᵉ étage avec ascenseur d’un très bel immeuble, ravissant appartement de 2 pièces principales, composé d'une entrée avec cuisine, d’un agréable séjour et d’une chambre, une salle de bain, WC indépendant.
Situé en proximité de Daumesnil et Bel-Air, dans un environnement très calme.
L’ensemble est lumineux et offre un cadre de vie très agréable.
Une cave en sous-sol complète ce bien.
Localisation Du bien
-
Commerces et santé
-
Loisirs
-
Ecoles
-
Transports
-
Pratique
Les infos Energetiques
Logement à consommation énergétique excessive : classe F
Montant estimé des dépenses annuelles d'énergie pour un usage standard est compris entre 1 180 € et 1 640 € . Prix moyens des énergies indexés sur les années 2021, 2022 et 2023 (abonnements compris).
Détails des diagnostics énergétiques
Logement à consommation énergétique excessive : classe F
Montant estimé des dépenses annuelles d'énergie pour un usage standard est compris entre 1 180 € et 1 640 € . Prix moyens des énergies indexés sur les années 2021, 2022 et 2023 (abonnements compris).
XII° Métro BEL-AIR
