Les infos Essentielles
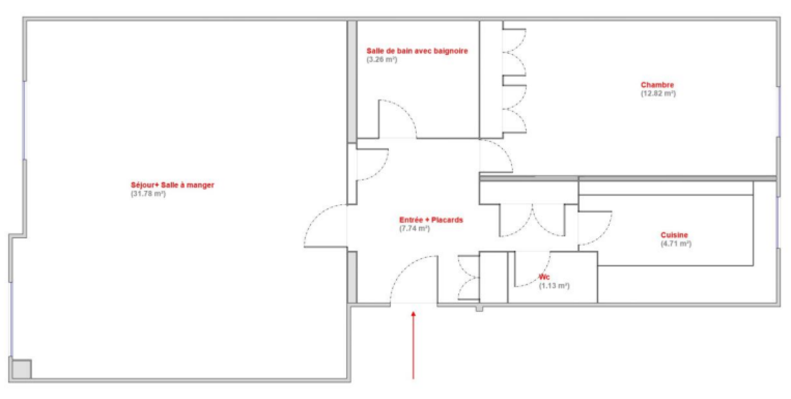
Au 4ème étage avec ascenseur 2/3 Pièces avec double Séjour plein Sud sur l'Avenue de Saint Mandé, Chambre et Cuisine sur cour, WC indépendant, salle de bains, nombreux placards.
" A RAFRAICHIR "
Cave en sous-sol
Localisation Du bien
-
Commerces et santé
-
Loisirs
-
Ecoles
-
Transports
-
Pratique
Les infos Energetiques
Montant estimé des dépenses annuelles d'énergie pour un usage standard est compris entre 1 010 € et 1 410 € . Prix moyens des énergies indexés sur les années 2021, 2022 et 2023 (abonnements compris).
Détails des diagnostics énergétiques
Montant estimé des dépenses annuelles d'énergie pour un usage standard est compris entre 1 010 € et 1 410 € . Prix moyens des énergies indexés sur les années 2021, 2022 et 2023 (abonnements compris).
Un emplacement exceptionnel
