Les infos Essentielles
Plein cœur rue du rendez-vous au niveau du Square Courteline -
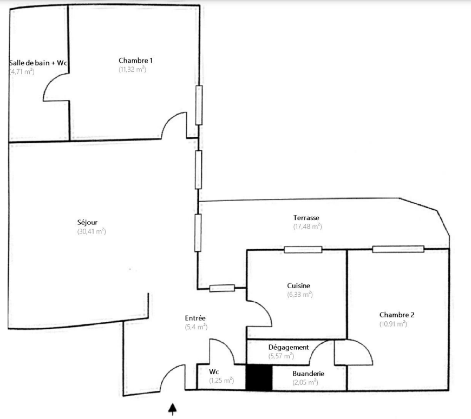
Dans un immeuble de standing de 1998 – un Appartement de 3/4 Pieces Principales comprenant : entrée - double Séjour de 30m² prolongé par une Terrasse de 18 m² plein soleil – cuisine équipée donnant également sur la terrasse – deux chambres – salle de bains avec WC – WC indépendant – rangements et buanderie.
CALME ABSOLU
- Cave et possibilité de parking
Localisation Du bien
-
Commerces et santé
-
Loisirs
-
Ecoles
-
Transports
-
Pratique
Les infos Energetiques
Détails des diagnostics énergétiques
4 Pièces 86 m² Avenue de Saint Mandé
